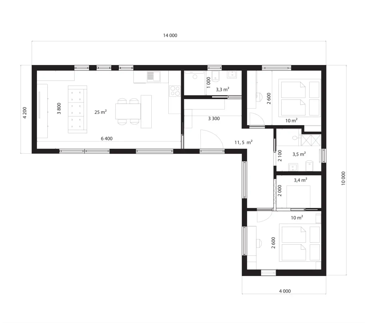
verbaute Fläche: 14,0x10,0m
EG: Wohnküche, 2 Zimmer, Lobby, 2 Bäder, Garderobe
Unser
LUMA
Modulhaus
verfügt
über
eine
großzügige
lichtdurchflutete
25m²
Wohnküche,
zwei
Schlafzimmern,
zwei
Badezimmer
und
es
stehen
Ihnen ein Kleiderschrank und viel Stauraum zur Verfügung.
Terrasse
Die optionale Terrasse, bietet den Bewohnern Privatsphäre und ist auf natürliche Weise mit dem Tragwerk des Hauses verbunden.
Versionen
Bevorzugen
Sie
eine
graue
oder
eine
weiße
Fassade?
Wir
können
Ihr
Haus
praktisch
nach
Maß
anpassen.
Wenn
Sie
eher
natürliche
Materialien
wie
Holz wünschen, ist das auch kein Problem.